Modernes Wohnen in Wachenheim
dort wo andere Urlaub machen
Unser Neubauprojekt in der Waldstraße 25, 67157 Wachenheim. Hier entstehen neun großzügige Eigentumswohnungen, die zwischen 54 m² und 132 m² Wohnfläche bieten. Jede Wohneinheit verfügt über einen Gartenanteil, eine Terrasse, einen Balkon oder eine Dachterrasse. Geplanter Erstbezug ist 2025.
Die Wohnungen sind nicht nur großzügig geschnitten, sondern auch barrierefrei über einen Aufzug erreichbar. Für alle Wohnungen stehen Stellplätze oder Carports zur Verfügung, um den Komfort der Bewohner zu gewährleisten.
Die Wohnungen sind nicht nur großzügig geschnitten, sondern auch barrierefrei über einen Aufzug erreichbar. Für alle Wohnungen stehen Stellplätze oder Carports zur Verfügung, um den Komfort der Bewohner zu gewährleisten.
Einige Highlights des Projekts:
| ▶ | Wohnungsgrößen: | 54 m² bis 132 m² |
| ▶ | Eigentumswohnungen: | 9 hochwertige Einheiten |
| ▶ | Barrierefreiheit: | Alle Wohnungen sind über Aufzüge erreichbar |
| ▶ | Stellplätze: | Teilweise Carports, teilweise Stellplätze |
| ▶ | Erstbezug: | Geplant für 2025 |

Visualisierungen

Grundrisse

Wohnung Nr. 01 - Gartengeschoss

Wohnung Nr. 01 - Erdgeschoss

Wohnung Nr. 02 - Gartengeschoss

Wohnung Nr. 03 - Erdgeschoss

Wohnung Nr. 04 - Erdgeschoss

Wohnung Nr. 05 - Obergeschoss

Wohnung Nr. 06 - Obergeschoss

Wohnung Nr. 07 - Obergeschoss

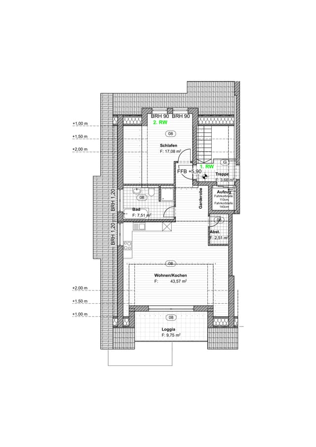
Wohnung Nr. 08 - Dachgeschoss

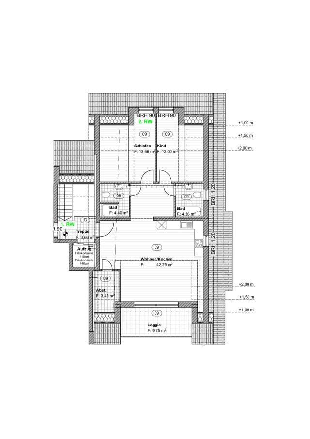
Wohnung Nr. 09 - Dachgeschoss

Wohnung Nr. 01 - Gartengeschoss

Wohnung Nr. 01 - Erdgeschoss

Wohnung Nr. 02 - Gartengeschoss

Wohnung Nr. 03 - Erdgeschoss

Wohnung Nr. 04 - Erdgeschoss

Wohnung Nr. 05 - Obergeschoss

Wohnung Nr. 06 - Obergeschoss

Wohnung Nr. 07 - Obergeschoss

Wohnung Nr. 08 - Dachgeschoss

Wohnung Nr. 09 - Dachgeschoss
Baustellenimpressionen

















